
產品概述
AIFLI-DFM/TZ 粉塵濃度檢測儀采用準確可靠的交流靜電測量技術,通過感應空氣中粉
塵粒子所攜帶的電荷,可實現粉塵濃度實時在線監控。
AIFLI-DFM/TZ 粉塵濃度檢測儀為一體式設計,集粉塵傳感器、變動器、及數字顯示屏
和聲光報警等為一體;操作簡單,安裝方便。實時在線對粉塵環境狀況進行監測,及
時進行報警使環境粉塵含量控制在標準范圍內,規避粉塵帶來的危害。
AIFLI-DFM/TZ 粉塵濃度檢測儀適用于生產車間、隧道、施工工地、倉庫、堆料場、皮帶及風力送料等各種產生粉塵的作業環境。


工作原理
應用環境:
AIFLI-DFM/TZ 粉塵濃度檢測儀采用準確可靠的交流靜電測量技術。當空氣中的荷電粒子經過傳感器時,粉塵粒子所攜帶的微弱電荷被傳感器采集并傳送至處理器,處理器把信號處理結果轉換成與粉塵含量成線性關系的輸出值。
粉塵儀功能
1、 粉塵濃度在線監測
產品實時在線檢測粉塵濃度,可連續監測工作場所粉塵濃度情況。
2、 粉塵濃度值數據直讀,可設置報警值,實現現場聲光報警
(1)產品自帶顯示屏,可實現粉塵濃度值數據直讀,方便使用者在檢測現場隨時查看
(2)可自行設置粉塵濃度報警值,儀器帶有報警功能,在粉塵濃度達到報警值時,會啟動聲光報警。
3、 儀器有模擬量、RS485 輸出
儀器有模擬量、RS485 輸出,可選擇接入 PLC\DCS 進行處理控制
粉塵儀 特性優點
1 、可測各類粉塵
測量介質范圍寬泛,可測量任何介質的粉塵粒子
2、 濃度測量范圍可定制
產品量程范圍大,可定制;可應用與各類生產車間;儲煤場、工地等各類作業環
境
3、 儀器免維護
傳感器為無源被動型,無電子電路,傳感器防止粉塵沾染、堆積,免維護。
4、 靈敏度高,可靠性高。
5、 、 粉塵儀為一體式設計,安裝簡單
產品一體式設計,集粉塵傳感器、數字顯示屏等為一體,可直接在檢測現場看到濃度值, 無需再外接控制器。
粉塵儀操作更加便捷,安裝更加簡單
AIFLI-DFM/TZ 粉塵濃度檢測儀適用于:
1、生產車間;噴涂車間、金屬品生產車間、食品加工車間等所有產生粉塵的車間
2、皮帶及風力送料、隧道、施工工地等相對開放性空間
3、倉庫、堆料場、儲煤場等倉儲性空間
應用行業:
AIFLI-DFM/TZ 粉塵濃度檢測儀適用于:
金屬制造、建材加工、谷物加工、糧食倉儲、水泥制造、石油化工化工品制造等工業行業
一、安裝位置
安裝位置一般選在容易產生揚塵的地方
二、安裝方式:
粉塵儀采用壁掛式安裝、吊裝及支架式安裝。
三、安裝注意
1、傳感器進氣口及出氣口不能被遮擋,否則會影響測量結果,但不會造成損壞。
2、外引電纜應就近固定,以防來回擺動,造成傳輸導線的機械損傷。
儀器組成及圖解
一、產品外觀及組成


儀器組成:
1.儀器外殼體 作用:保護儀器內部工作單元
2.接線口 作用:連接線路到內部接線端子,即可啟動儀器進行工作。
3.二次表 作用:實時顯示粉塵濃度值,可設功能報警值。
4.透明顯示窗 作用:方便觀察顯示儀上顯示的粉塵濃度值。
5.傳感器單元 作用:粉塵通過傳感器單元時,傳感器會捕捉、感應粉塵粒子所攜帶電荷。
6.過濾盒 作用:防止儀器內部沾染粉塵。
7.報警器 作用:粉塵濃度超標時,啟動聲光報警。
儀器操作及工作流程
二、將 4-20mA 輸出端子接線, 與其他信號處理系統連接,方便信號的后續處理儀器操作及工作流程
一、在將儀器安裝固定好之后,打開儀器,可看到接線端子,將電源與儀器電源端子連接(注意區分正負極)



儀器安裝
三、啟動電源,儀器即進入工作狀態
(一)空氣會通過傳感器,頻率為每 3S 一次
(二)需檢測空氣通過傳感器部分,傳感器會感應并采集氣體中粉塵粒子所攜帶的電荷,并傳送至處理器
(三)處理器把信號處理結果轉換成與粉塵含量成線性關系的輸出值,并顯示數值在顯示屏上。
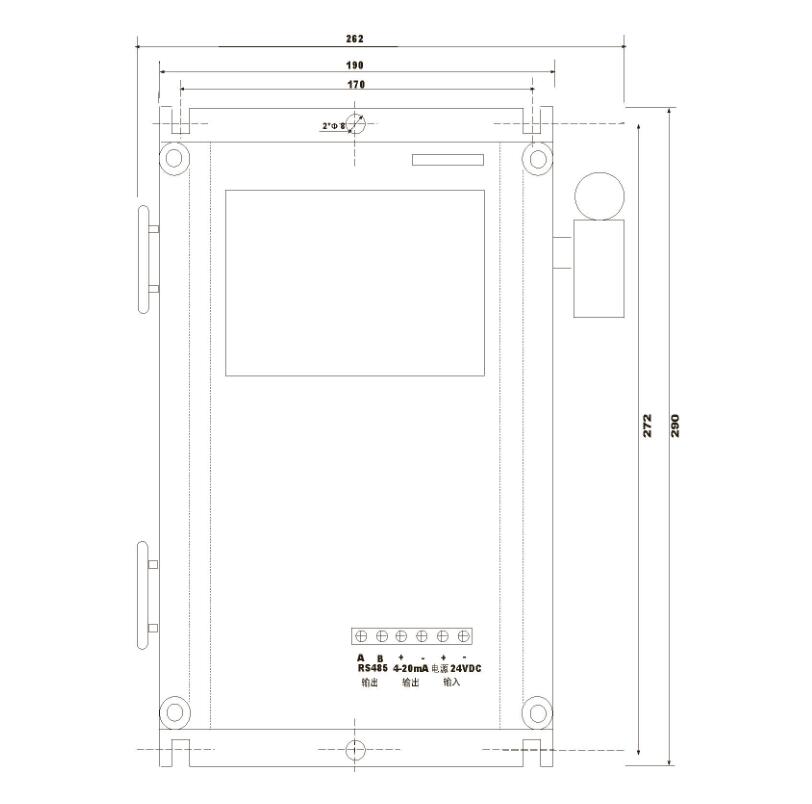
產品尺寸圖


基本參數



基本參數
